Op zoek naar een eigen plekje om er even helemaal tussenuit te gaan? Dit sfeervolle chalet op EuroParcs Zuiderzee is volledig jouw eigendom en ligt in een van de mooiste regio’s van Nederland – omringd door rust, natuur en water.
De woning beschikt over een lichte en gezellige woonkamer, een compleet uitgeruste keuken en twee comfortabele slaapkamers die plaats bieden aan vier personen. Of je nu kiest voor een korte vakantie of een langer verblijf: hier geniet je van alle comfort en privacy. Dankzij de unieke ligging aan het water en de uitstekende parkfaciliteiten is dit de ideale locatie voor ontspanning én plezier. Elke dag voelt hier als vakantie!
- For English, please scroll down -
Kenmerken
- Chalet uit 2022
- Woonoppervlakte van 47 m² op een perceel van 189 m²
- 2 slaapkamers
- Energielabel A
- Gelegen aan de waterkant
- Chalet is in volledige eigendom
- De woning beschikt over een privé berging, ideaal voor het stallen van fietsen of het opslaan van persoonlijke spullen
- Gelegen aan het water in een rustige, doodlopende weg – deze woning biedt het perfecte samenspel van serene ligging én uitzicht, net even los van de drukte van het park
- De tuin is voorzien van een omheining, zodat jonge kinderen niet ongehinderd bij de vijver kunnen komen
- Verhuur en particulier gebruik (permanente bewoning niet toegestaan tot nader besluit vanuit de gemeente)
- Keuken van alle gemakken voorzien waaronder een inductiekookplaat, koel-vriescombinatie
- Moderne badkamer met douche, toilet en wastafelmeubel
- Parkeren op eigen terrein met ruimte voor 2 auto's
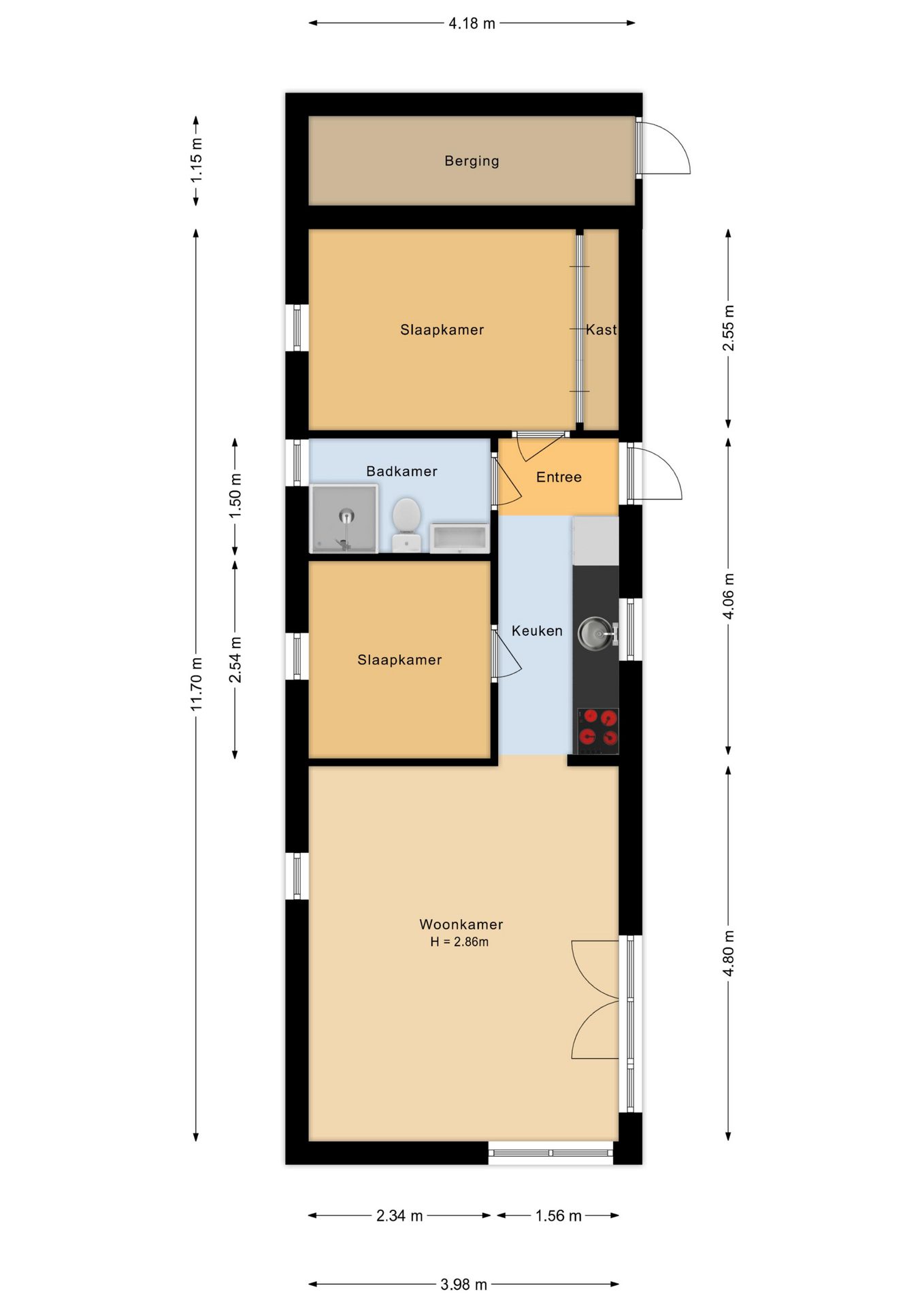
Indeling
Bij binnenkomst stap je in de entree, waar direct de eerste slaapkamer bereikbaar is. Deze kamer biedt ruimte voor een tweepersoonsbed en beschikt over handige ingebouwde kastruimte. De naastgelegen badkamer is modern uitgevoerd en voorzien van een douche, toilet en een stijlvol wastafelmeubel. Naast de badkamer bevindt zich de tweede slaapkamer.
De moderne keuken is van alle gemakken voorzien, inclusief diverse inbouwapparatuur. Vanuit de keuken loop je door naar de lichte woonkamer, die dankzij grote raampartijen en dubbele openslaande deuren een aangename sfeer heeft.
Het chalet is prachtig gelegen aan het water en biedt veel privacy en beschutting – een ideale plek om in alle rust te genieten van het buitenleven. Op het perceel is bovendien ruimte voor het parkeren van twee auto's.
Kortom, dit chalet biedt niet alleen een comfortabele woonruimte, maar ook een oase van rust aan het water. Ideaal voor wie op zoek is naar een sfeervolle en rustige plek om te genieten van het leven.
EuroParcs Zuiderzee biedt alles wat je zoekt in een vakantiepark:
- Binnenzwembad, indoor speelhal en diverse sportfaciliteiten
- Restaurant, bar, beachclub en snackbar voor een hapje en drankje
- Jachthaven voor watersportliefhebbers
- Direct gelegen aan het Veluwemeer, ideaal voor een frisse duik of een dagje zeilen
In de omgeving is veel te ontdekken, van de Veluwse bossen tot de historische Hanzesteden zoals Kampen en Elburg. Ook de adrenalinezoekers kunnen hun hart ophalen in Walibi Holland, op slechts 4 minuten rijden!
Dit is de perfecte vakantiewoning voor iedereen die van natuur, water en ontspanning houdt.
Ready to move in & ready to rent out! Tot snel!
- - - - - - - - -
Looking for your own place to get away from it all? This charming chalet at EuroParcs Zuiderzee is entirely yours and is located in one of the most beautiful regions of the Netherlands—surrounded by peace, nature, and water.
The property has a bright and cozy living room, a fully equipped kitchen, and two comfortable bedrooms that can accommodate four people. Whether you opt for a short vacation or a longer stay, you will enjoy every comfort and privacy here. Thanks to its unique location on the water and excellent park facilities, this is the ideal location for relaxation and fun. Every day feels like a vacation here!
Features
- Chalet built in 2022
- Living area of 47 m² on a plot of 189 m²
- 2 bedrooms
- Energy label A
- Located on the waterfront
- Chalet is fully owned
- The property has a private storage room, ideal for storing bicycles or personal belongings
- Located on the waterfront in a quiet cul-de-sac – this property offers the perfect combination of a serene location and views, just away from the hustle and bustle of the park
- The garden is fenced, so young children cannot access the pond unhindered
- Rental and private use (permanent residence not permitted until further notice from the municipality)
- Fully equipped kitchen including an induction hob and fridge-freezer
- Modern bathroom with shower, toilet, and sink
- Parking on site with space for 2 cars
Layout
Upon entering, you step into the entrance hall, where the first bedroom is immediately accessible. This room offers space for a double bed and has convenient built-in closet space. The adjacent bathroom is modern and equipped with a shower, toilet, and stylish sink. Next to the bathroom is the second bedroom.
The modern kitchen is fully equipped, including various built-in appliances. From the kitchen, you walk through to the bright living room, which has a pleasant atmosphere thanks to large windows and double French doors.
The chalet is beautifully situated on the water and offers plenty of privacy and shelter—an ideal place to enjoy the outdoors in peace and quiet. There is also space on the plot to park two cars.
In short, this chalet not only offers comfortable living space, but also an oasis of tranquility by the water. Ideal for those looking for an attractive and peaceful place to enjoy life.
EuroParcs Zuiderzee offers everything you could want in a holiday park:
- Indoor swimming pool, indoor games room, and various sports facilities
- Restaurant, bar, beach club, and snack bar for food and drinks
- Marina for water sports enthusiasts
- Located directly on Lake Veluwe, ideal for a refreshing dip or a day of sailing
There is much to discover in the surrounding area, from the Veluwe forests to the historic Hanseatic cities such as Kampen and Elburg. Adrenaline seekers can also indulge themselves at Walibi Holland, just a 4-minute drive away!
This is the perfect vacation home for anyone who loves nature, water, and relaxation.
Ready to move in & ready to rent out! See you soon!
Overdracht
- Vraagprijs:€ 245.000,- k.k.
- Status:Beschikbaar
- Aanvaarding:In overleg
Bouw
- Soort:Bungalow
- Bouwvorm:Bestaande bouw
- Bouwjaar:2022
- Dak type:Plat dak
Oppervlakten en inhoud
- Wonen:47 m2
- Overige inpandige ruimte:0 m2
- Gebouwgebonden buitenruimte:0 m2
- Perceel:289 m2
- Inhoud:189 m3
Indeling
- Aantal kamers:3
- Aantal slaapkamers:2
- Voorzieningen:Mechanische ventilatie, TV kabel, Glasvezel kabel
Energie
- Energieklasse:A
- Isolatievormen:Volledig geïsoleerd
- Soorten verwarming:CV ketel
- Soorten warm water:CV ketel
Buitenruimte
- Liggingen:Aan water, Aan rustige weg, In bosrijke omgeving
- Tuintypen:Tuin rondom
- Hoofdtuin:Tuin rondom
- Achterom:Ja
Parkeergelegenheid
- Parkeer faciliteiten:Op eigen terrein, Op afgesloten terrein
- Parkeren capaciteit:2
Kadastrale gegevens
- Gemeente:Dronten
- Perceel:2934
- Oppervlakte:289 m2
- Eigendomssituatie:Volle eigendom






