Wanneer je van een moderne afwerking houdt en in een gezellige woonomgeving wil wonen, zou dit zomaar jouw nieuwe thuis kunnen zijn. De Chatelainestraat 50 is recent gerenoveerd en voorzien van PVC visgraat vloer beneden, moderne badkamer, deels vernieuwde keuken en is verduurzaamd met nieuwe C.V.-ketel én 10 zonnepanelen.
- Getoonde prijs betreft een bieden vanaf prijs - For English, please scroll down -
Deze tussenwoning in de geliefde Sieradenbuurt is niet alleen binnen een fijne plek. Aan de achterzijde heb je een terras welke is gelegen aan een groot gemeenschappelijk binnenterrein waar je heerlijk, zelf of met de kids, van kan genieten. Alle voorzieningen zijn nabij, denk aan supermarkten, kinderopvang, scholen, gezondheidsvoorzieningen en zelf een voedselbos. Natuurlijk is er ook een goede aansluiting op het openbaar vervoer met op loop- en fietsafstand een bushalte en treinstation Almere Oostvaarders. Met de auto rij je zo op de N702 en binnen enkele minuten de A6.
Kortom, een heerlijke, instapklare woning die klaar is voor de toekomst gelegen op een fijne locatie.
We zetten de belangrijkste kenmerken voor je op een rij. Ben je geïnteresseerd en wil je komen kijken? Plan direct online een bezichtiging in. Er is hier zoveel te beleven, wij laten je graag alles zien.
Kenmerken
- Tussenwoning uit 2006
- Energiezuinig met energielabel A en extra verduurzaamd met nieuwe C.V.-ketel (2021) en 10 zonnepanelen (2023)
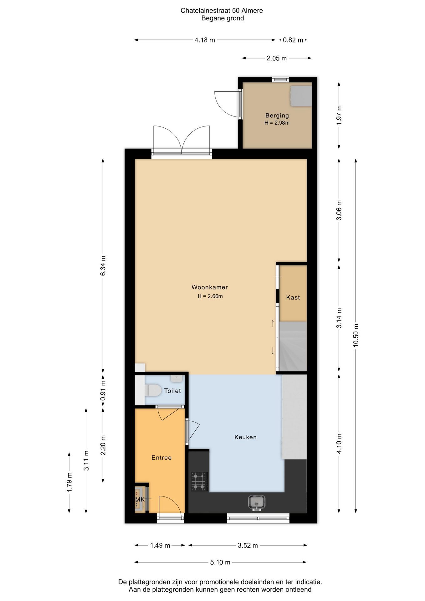
- 108 m² woonoppervlakte op een perceel van 70 m², grenzend aan het binnenterrein van 1475 m²
- Moderne keuken (deels 2023) voorzien van diverse inbouwapparatuur waaronder Siemens oven en magnetron, 4-pits gaskookplaat, afzuigkap, vaatwasser en koel-vriescombinatie
- Fijne lichte woonkamer met openslaande deuren naar het terras en groen uitzicht over het binnenterrein
- 3 volwaardige slaapkamers
- Moderne badkamer (2023) voorzien van douche, wandcloset toilet, dubbel wastafelmeubel en spiegel met verlichting
- Aparte wasruimte op de 1e verdieping
- Gelegen aan een fraai afgewerkt gemeenschappelijk (mandelig) binnenterrein welke wordt onderhouden door een Vereniging van Eigenaren en waar de aangrenzende bewoners gebruik van mogen maken. Bijdrage aan de VvE voor het onderhoud is €100,- per jaar.
- Op loop en fietsafstand vind je een supermarkt, kinderopvang, sportschool, scholen, gezondheidsvoorzieningen, treinstation en bushalte
- Op korte afstand van Almere Buiten Centrum en Doe Mere, met een uitgebreid aanbod aan winkels en gezellige horecagelegenheden
- Binnen enkele minuten rij je op de A6/A27 waarmee je binnen 20-30 minuten aankomt in Amsterdam, Lelystad, Amersfoort, Hilversum en Utrecht
- Oplevering in overleg
Ben je geïnteresseerd en wil je komen kijken? Plan direct online een bezichtiging in, wij laten je deze fantastische woning graag zien. Tot snel!
- - - - -
If you appreciate modern finishes and want to live in a cozy neighborhood, this could very well be your new home. The property at Chatelainestraat 50 has been recently renovated and features PVC herringbone flooring on the ground floor, a modern bathroom, a partially updated kitchen, and has been made more sustainable with a new central heating boiler and 10 solar panels.
- The price shown is a starting bid price -
This townhouse in the popular Sieradenbuurt neighborhood isn’t just a pleasant place inside. At the back, you’ll find a terrace situated in a large communal courtyard where you can relax and enjoy yourself, alone or with the kids. All amenities are nearby, including supermarkets, childcare, schools, healthcare facilities, and even a food forest. Of course, there’s also excellent access to public transportation, with a bus stop and the Almere Oostvaarders train station within walking and biking distance. By car, you can easily get onto the N702 and reach the A6 within minutes.
In short, a delightful, move-in-ready home that’s ready for the future, situated in a great location.
We’ve listed the key features for you. Are you interested and would you like to come take a look? Schedule a viewing online right away. There’s so much to experience here—we’d love to show you everything.
Features
- Townhouse built in 2006
- Energy-efficient with an A energy rating and further upgraded with a new boiler (2021) and 10 solar panels (2023)
- 108 m² of living space on a 70 m² lot, adjacent to a 1,475 m² courtyard
- Modern kitchen (partially 2023) equipped with various built-in appliances, including a Siemens oven and microwave, 4-burner gas stove, range hood, dishwasher, and fridge-freezer
- Bright, pleasant living room with French doors opening onto the terrace and a green view of the courtyard
- 3 full-sized bedrooms
- Modern bathroom (2023) equipped with a shower, wall-mounted toilet, double vanity, and mirror with lighting
- Separate laundry room on the 1st floor
- Located on a beautifully landscaped communal courtyard maintained by a Homeowners’ Association and available for use by adjacent residents. The annual maintenance fee for the Homeowners’ Association is €100.
- Within walking and biking distance, you’ll find a supermarket, childcare, a gym, schools, healthcare facilities, a train station, and a bus stop
- A short distance from Almere Buiten Centrum and Doe Mere, with a wide range of shops and cozy restaurants and cafes
- Within minutes, you can access the A6/A27, allowing you to reach Amsterdam, Lelystad, Amersfoort, Hilversum, and Utrecht in 20–30 minutes
- Delivery date to be determined
Are you interested and would you like to come take a look? Schedule a viewing online right away; we’d love to show you this fantastic home. See you soon!
Overdracht
- Vraagprijs:€ 415.000,- k.k.
- Status:Beschikbaar
- Aanvaarding:In overleg
Bouw
- Soort:Eengezinswoning
- Bouwvorm:Bestaande bouw
- Bouwjaar:2006
- Dak type:Plat dak
Oppervlakten en inhoud
- Wonen:108 m2
- Overige inpandige ruimte:4 m2
- Gebouwgebonden buitenruimte:0 m2
- Perceel:1.545 m2
- Inhoud:410 m3
Indeling
- Aantal kamers:4
- Aantal badkamers:1
- Aantal slaapkamers:3
- Voorzieningen:Mechanische ventilatie, TV kabel, Glasvezel kabel, Zonnepanelen, Natuurlijke ventilatie
Energie
- Energieklasse:A
- Isolatievormen:Volledig geïsoleerd
- Soorten verwarming:CV ketel
- Soorten warm water:CV ketel
Buitenruimte
- Liggingen:Aan rustige weg, In woonwijk
- Tuintypen:Achtertuin
- Hoofdtuin:Achtertuin
- Hoofdtuin opp.:6 m2
- Hoofdtuin positie:Noordoost
- Achterom:Nee
Bergruimte
- Soort:Aangebouwd hout
- Voorzieningen:Voorzien van elektra
Parkeergelegenheid
- Parkeer faciliteiten:Openbaar parkeren
Kadastrale gegevens
- Gemeente:Almere
- Perceel:1153
- Oppervlakte:70 m2
- Eigendomssituatie:Volle eigendom
Kadastrale gegevens
- Gemeente:Almere
- Perceel:1174
- Oppervlakte:1.475 m2
- Eigendomssituatie:MANDELIG






