Luxe familiewoning in de heerlijke Blaricummermeent!
Deze tot in de puntjes afgewerkte woning heeft alles wat je zoekt. Een luxe keuken met halve waterval van natuurstenen blad, prachtige eikenhouten visgraat vloer, maar liefst 5 slaapkamers (met mogelijkheid tot een 6e) én is zeer energiezuinig met warmtepomp, 11 zonnepanelen, volledige isolatie waaronder HR+++ glas en vloerverwarming op elke verdieping.
Gelegen in de kindvriendelijke en jonge woonwijk Blaricummermeent kun je hier genieten van de prachtige omgeving met alle voorzieningen op loop- en fietsafstand, maar ook Huizen, Laren en het historische centrum van Blaricum zijn op fietsafstand gelegen.
Een fantastische woning die klaar is voor de toekomst en gelegen is op een heerlijke plek!
We zetten de belangrijkste kenmerken voor je op een rij. Ben je geïnteresseerd en wil je komen kijken? Plan direct online een bezichtiging in, wij laten je graag alles zien.
Kenmerken
- Tussenwoning uit 2017
- Zeer energiezuinig met energielabel A, volledig geïsoleerd, HR+++ (triple) beglazing, 11 zonnepanelen en een warmtepomp (huur)
- Volledig voorzien van vloerverwarming/koeling
- Beschikt over een waterontharder voor de gehele woning
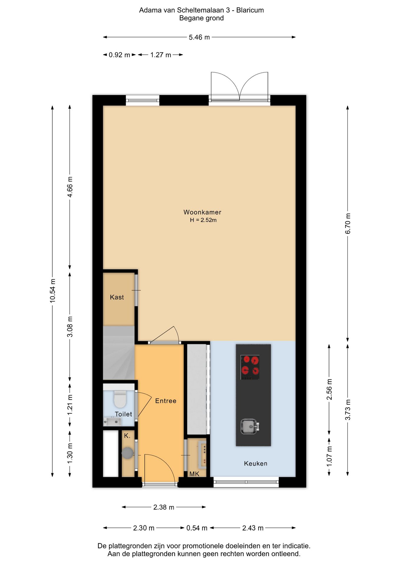
- Woonkamer met veel natuurlijke lichtinval en openslaande deuren die toegang bieden tot de tuin
- Prachtige eikenhouten visgraatvloer op de begane grond en eerste verdieping
- Luxe keuken met kookeiland, voorzien van Bora inductiekookplaat met geïntegreerde afzuiging, plafondafzuiging, combi-magentron, koel-vriescombinatie, vaatwasser, Quooker en afgewerkt met een prachtig natuurstenen blad in een halve waterval
- 5 goede slaapkamers, met mogelijkheid tot realisatie van een 6e op de tweede verdieping
- Moderne badkamer voorzien van een inloopdouche, dubbel wastafelmeubel, handdoekradiator en wandcloset toilet
- Fraai afgewerkte voor- en achtertuin, met altijd wel een plek in de zon te vinden
- Gelegen in een groene en waterrijke omgeving
- Op loopafstand van bushalte, supermarkt, kinderopvang, scholen, speeltuintjes en diverse sportclubs
- Met de fiets en auto bereik je binnen 10-20 minuten Laren, Huizen, Blaricum centrum maar ook strand Zomerkade, het Gooimeer en de Tafelberg
- Rij met enkele minuten de A27 op richting Almere/Lelystad/Hilversum/Utrecht
- Oplevering in overleg
Wonen in de Blaricummermeent – natuur, ruimte en optimale bereikbaarheid
Stel je voor: een groene en waterrijke woonwijk met alle dagelijkse voorzieningen gewoon binnen handbereik. Dat is precies wat de Blaricummermeent te bieden heeft.
Deze populaire en nog relatief jonge wijk is werkelijk uniek gelegen – omgeven door prachtige natuurgebieden zoals de Tafelberg, de Blaricummerheide en het Gooimeer met zijn eigen strand. Of het nu gaat om wandelen, fietsen of watersport: hier is het allemaal letterlijk om de hoek te vinden.
Wie graag winkelt, uit eten gaat of cultuur opsnuift, zal blij zijn met de nabijheid van gezellige plaatsen als Huizen, Laren en het historische centrum van Blaricum. En voor werk of een stedelijk uitje zijn Utrecht, Amersfoort en Amsterdam uitstekend bereikbaar dankzij de gunstige ligging van de wijk.
De Blaricummermeent combineert het beste van twee werelden: de rust en ruimte van een groene woonomgeving, met alles wat een moderne levensstijl vraagt binnen gemakkelijk bereik. Een wijk om écht thuis te komen.
Klinkt dit als jouw nieuwe thuis? Plan direct online een bezichtiging in, we laten je graag alles zien. Tot snel!
Overdracht
- Vraagprijs:€ 749.000,- k.k.
- Status:Beschikbaar
- Aanvaarding:In overleg
Bouw
- Soort:Eengezinswoning
- Bouwvorm:Bestaande bouw
- Bouwjaar:2017
- Dak type:Zadeldak
Oppervlakten en inhoud
- Wonen:138 m2
- Overige inpandige ruimte:0 m2
- Gebouwgebonden buitenruimte:0 m2
- Perceel:143 m2
- Inhoud:481 m3
Indeling
- Aantal kamers:6
- Aantal badkamers:1
- Aantal slaapkamers:5
- Voorzieningen:Glasvezel kabel, Zonnepanelen
Energie
- Energieklasse:A
- Isolatievormen:Dakisolatie, Muurisolatie, Vloerisolatie, Volledig geïsoleerd, Driedubbel glas
- Soorten verwarming:Vloerverwarming geheel
Buitenruimte
- Liggingen:Aan rustige weg, In woonwijk
- Tuintypen:Achtertuin, Voortuin
- Hoofdtuin:Achtertuin
- Hoofdtuin opp.:55 m2
- Hoofdtuin positie:Noordoost
- Achterom:Ja
Bergruimte
- Soort:Vrijstaand hout
- Voorzieningen:Voorzien van elektra
Parkeergelegenheid
- Parkeer faciliteiten:Openbaar parkeren
Kadastrale gegevens
- Gemeente:Blaricum
- Perceel:4389
- Oppervlakte:143 m2
- Eigendomssituatie:Volle eigendom






