Fijne hoekwoning met energielabel A, vloerverwarming en volledig geïsoleerd, wat zorgt voor comfortabel en duurzaam wonen. De praktische indeling en rustige ligging maken dit een ideale plek voor starters of jonge gezinnen.
De lichte woonkamer met veel ramen zorgt voor een fijne lichtinval en biedt directe toegang tot de 13 meter diepe tuin. Met drie volwaardige slaapkamers, een functionele keuken en een complete badkamer vormt dit een woning waarin je meteen kunt wonen, met ruimte om het verder naar eigen wens aan te passen.
Getoonde prijs betreft een bieden vanaf prijs - For English, please scroll down -
Hier woon je op een groene en kindvriendelijke locatie met verschillende voorzieningen zoals scholen en een supermarkt op loop- of fietsafstand. Kortom: een instapklare woning op een goede locatie!
We zetten de belangrijkste kenmerken voor je op een rij. Ben je geïnteresseerd en wil je komen kijken? Neem contact op voor een bezichtiging. Er is hier zoveel te beleven, wij laten je graag alles zien.
Kenmerken
- Hoekwoning uit 1997
- Energiezuinig met energielabel A, volledig geïsoleerd, dubbel glas
- 105 m² woonoppervlakte op een perceel van 173 m²
- Open keuken voorzien van een inductiekookplaat, oven, vaatwasser en koel-vriescombinatie
- Begane grond voorzien van een comfortabele vloerverwarming
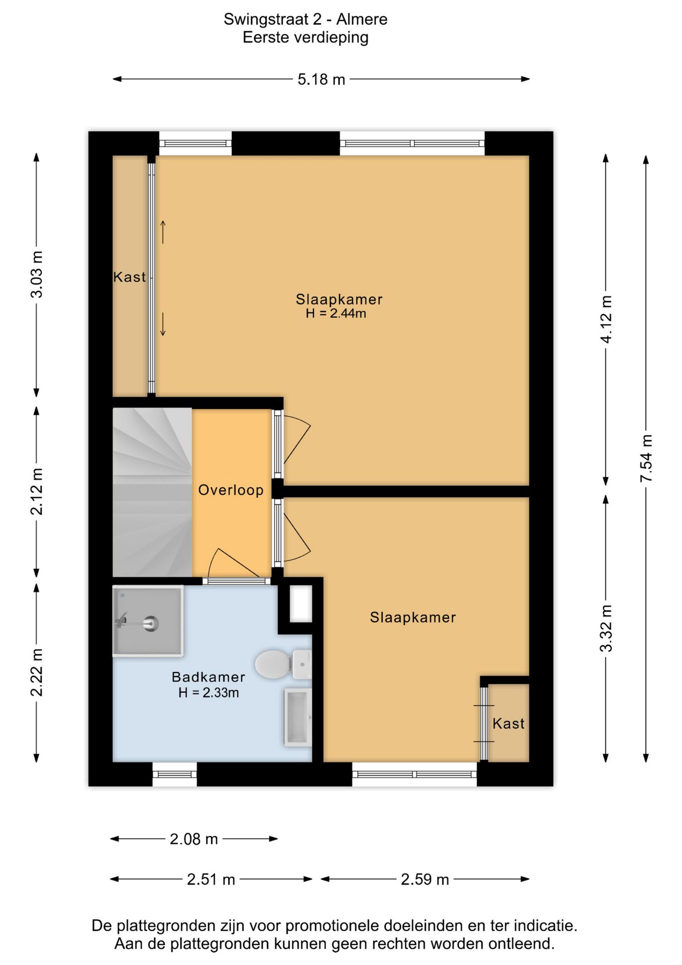
- 3 volwaardige slaapkamers, waarvan één op de eerste etage is voorzien van inbouwkasten
- Badkamer voorzien van een douche, wastafel en toilet
- De tuin is gelegen op het noordwesten en voorzien van diverse fruitbomen (appel, peer en pruim), bessenstruiken (framboos en aalbes) en aardbeiplanten. Ideaal voor liefhebbers van vers fruit uit eigen tuin
- Openbare parkeergelegenheid voor de deur
- De woning is gelegen nabij scholen, een kinderopvang, supermarkt, speeltuintje
- Binnen 10 minuten rij je op de A6/A27 waarmee je binnen 20-30 minuten aankomt in Amsterdam, Lelystad, Amersfoort, Hilversum en Utrecht
- Oplevering in overleg
Over de woonomgeving:
De woning is gelegen in de rustige en kindvriendelijke Danswijk in Almere, met een prettige mix van groen, ruimte en stedelijke voorzieningen. In de directe omgeving vind je diverse parken, speeltuinen en wandelroutes. Scholen, kinderopvang en sportfaciliteiten zijn op korte afstand aanwezig, net als winkels voor de dagelijkse boodschappen.
De wijk is goed bereikbaar met zowel het openbaar vervoer als de auto. Uitvalswegen richting de A6 en A27 zijn snel te bereiken. Daarnaast ligt het centrum van Almere-Stad met zijn uitgebreide winkel- en horeca-aanbod op korte fietsafstand. Kortom: Een fijne woonomgeving waar rust, comfort en bereikbaarheid samenkomen.
Ben je geïnteresseerd en wil je komen kijken? Neem contact op voor een bezichtiging we laten je deze fantastische plek met liefde zien.
- - - - - - - - - -
Nice corner house with energy label A, underfloor heating, and fully insulated, ensuring comfortable and sustainable living. The practical layout and quiet location make this an ideal place for first-time buyers or young families.
The bright living room with lots of windows provides plenty of natural light and offers direct access to the 13-meter-deep garden. With three full bedrooms, a functional kitchen, and a complete bathroom, this is a home you can move into right away, with room to customize it to your liking.
The price shown is a starting price -
Here you will live in a green and child-friendly location with various amenities such as schools and a supermarket within walking or cycling distance. In short: a ready-to-move-in home in a great location!
We have listed the most important features for you. Are you interested and would you like to come and have a look? Please contact us for a viewing. There is so much to experience here, we would love to show you everything.
Features
- Corner house built in 1997
- Energy efficient with energy label A, fully insulated, double glazing
- 105 m² of living space on a plot of 173 m²
- Open kitchen with induction hob, oven, dishwasher, and fridge-freezer
- Ground floor with comfortable underfloor heating
- 3 full bedrooms, one of which is on the first floor and has built-in wardrobes
- Bathroom with shower, sink, and toilet
- The garden faces northwest and has various fruit trees (apple, pear, and plum), berry bushes (raspberry and currant), and strawberry plants. Ideal for lovers of fresh fruit from their own garden
- Public parking in front of the door
- The house is located near schools, a daycare center, supermarket, and playground
- Within 10 minutes you can reach the A6/A27 motorway, which will take you to Amsterdam, Lelystad, Amersfoort, Hilversum, and Utrecht within 20-30 minutes
- Delivery in consultation
About the neighborhood:
The house is located in the quiet and child-friendly Danswijk neighborhood in Almere, with a pleasant mix of greenery, space, and urban amenities. In the immediate vicinity, you will find several parks, playgrounds, and walking routes. Schools, childcare, and sports facilities are a short distance away, as are shops for daily groceries.
The neighborhood is easily accessible by both public transport and car. The A6 and A27 highways are within easy reach. In addition, the center of Almere-Stad, with its extensive range of shops and restaurants, is a short bike ride away. In short: a pleasant living environment where tranquility, comfort, and accessibility come together.
Are you interested and would you like to come and have a look? Please contact us for a viewing and we will be happy to show you this fantastic place.
Overdracht
- Vraagprijs:€ 475.000,- k.k.
- Status:Beschikbaar
- Aanvaarding:In overleg
Bouw
- Soort:Eengezinswoning
- Bouwvorm:Bestaande bouw
- Bouwjaar:1997
- Dak type:Zadeldak
Oppervlakten en inhoud
- Wonen:105 m2
- Overige inpandige ruimte:0 m2
- Gebouwgebonden buitenruimte:0 m2
- Perceel:173 m2
- Inhoud:364 m3
Indeling
- Aantal kamers:4
- Aantal badkamers:1
- Aantal slaapkamers:3
- Voorzieningen:Mechanische ventilatie, Rolluiken, Dakraam, Glasvezel kabel
Energie
- Energieklasse:A
- Isolatievormen:Dubbelglas, Volledig geïsoleerd
- Soorten verwarming:Stadsverwarming, Vloerverwarming gedeeltelijk
- Soorten warm water:Stadsverwarming
Buitenruimte
- Liggingen:Aan rustige weg, In woonwijk
- Tuintypen:Achtertuin, Voortuin
- Hoofdtuin:Achtertuin
- Hoofdtuin opp.:78 m2
- Hoofdtuin positie:Noordwest
- Achterom:Ja
Bergruimte
- Soort:Vrijstaand hout
- Voorzieningen:Voorzien van elektra
Parkeergelegenheid
- Parkeer faciliteiten:Openbaar parkeren
Kadastrale gegevens
- Gemeente:Almere
- Perceel:3972
- Oppervlakte:173 m2
- Eigendomssituatie:Volle eigendom






