Sfeervol en duurzaam wonen in de geliefde Stripheldenbuurt van Almere!
Instapklare tussenwoning waar comfort, duurzaamheid en een fijne ligging perfect samenkomen. Deze moderne tussenwoning is tot in de puntjes verzorgd en biedt alles wat je zoekt in een toekomstbestendig thuis. Van een gezellige houtkachel en comfortabele vloerverwarming op de gehele benedenverdieping tot 17 zonnepanelen en een stijlvolle keuken – hier is aan alles gedacht.
- Getoonde prijs betreft een bieden vanaf prijs - For English, please scroll down -
Deze ruime en energiezuinige woning is ideaal voor gezinnen, thuiswerkers of iedereen die op zoek is naar een fijne plek in een rustige, kindvriendelijke buurt. Dankzij de eigen parkeerplaats, vier volwaardige slaapkamers en de royale achtertuin met een fijne overkapping is dit een huis waar je jarenlang met plezier zult wonen.
We zetten de belangrijkste kenmerken voor je op een rij. Ben je geïnteresseerd en wil je komen kijken? Neem contact op voor een bezichtiging. Er is hier zoveel te beleven, wij laten je graag alles zien.
Kenmerken
- Tussenwoning uit 2008
- Energiezuinig met energielabel A+, volledig geïsoleerd, HR++ beglazing en voorzien van 17 zonnepanelen
- 146 m² woonoppervlakte op een perceel van 147 m²
- Moderne keuken (2021) voorzien van o.a. een inductiekookplaat, design afzuigkap, combimagnetron, stoomoven, koelkast, vriezer, vaatwasser en Quooker
- De sfeervolle houtkachel zorgt ’s winters voor een aangename warmte en verwarmt moeiteloos de hele woning
- De begane grond is voorzien van een comfortabele vloerverwarming
- De openslaande deuren, gecombineerd met royale raampartijen, zorgen voor veel natuurlijke lichtinval
- Ruime achtertuin gelegen op het noordoosten en beschikt over een mooie overkapping voor gezellige momenten buiten
- Volledig vernieuwde meterkast (2024) met driefase aansluiting, kabel t.b.v. laadpaal ligt al ondergronds tot aan de parkeerplaats
- 4 volwaardige slaapkamers
- De badkamer (2019) is van alle gemakken voorzien, waaronder een comfortabel ligbad, inloopdouche, wastafelmeubel en een toilet
- Parkeer je auto op je een eigen parkeervak op de parkeerplaats voorzien van een laadkabel
- De woning ligt in een autoluw hofje dat uitsluitend toegankelijk is voor bestemmingsverkeer, wat zorgt voor rust en veiligheid
- Gelegen in de gezellige en kindvriendelijke Stripheldenbuurt
- Op loopafstand vind je een supermarkt, scholen, kinderopvang, speeltuintje, sportschool, gezondheidsvoorzieningen
- Op 8 minuten rijden of enkele minuten fietsen afstand van centrum Almere Buiten met diverse winkels, woonboulevard Doe Mere, versmarkt en treinstation. Almere Centrum ligt op ca. 10 minuten afstand met een breed scala aan winkels en horeca
- Binnen 5 minuten rij je op de A6/A27 waarmee je binnen 20-30 minuten aankomt in Amsterdam, Lelystad, Amersfoort, Hilversum en Utrecht.
- Oplevering in overleg
Over de woonomgeving:
De woning is gelegen in de rustige en kindvriendelijke Stripheldenbuurt Oost, een moderne wijk in Almere Buiten. Deze buurt staat bekend om haar eigentijdse architectuur, brede opzet en een prettige mix van jonge gezinnen en starters. De straat zelf is onderdeel van een autoluw hofje, waar voornamelijk bestemmingsverkeer komt, wat bijdraagt aan een veilige en rustige leefomgeving. De directe omgeving biedt alle dagelijkse voorzieningen binnen handbereik. Op korte afstand bevinden zich diverse supermarkten, basisscholen, kinderopvang en speelvoorzieningen. Voor uitgebreide winkelmogelijkheden of horeca zijn de DoeMere woonboulevard en het centrum van Almere Buiten eenvoudig te bereiken, zowel met de fiets als met het openbaar vervoer.
De bereikbaarheid is uitstekend. Via de nabijgelegen uitvalswegen (A6 en N702) ben je snel onderweg richting Amsterdam, Lelystad of Utrecht. Ook met het openbaar vervoer is de verbinding goed: bushaltes liggen op loopafstand en station Almere Buiten bevindt zich op korte fietsafstand.
De wijk is ruim opgezet met veel aandacht voor groen en water. In de omgeving zijn diverse parken en natuurstroken te vinden, ideaal voor een wandeling, hardloopronde of gewoon even ontspannen in de buitenlucht.
Ben je geïnteresseerd en wil je komen kijken? Neem contact op voor een bezichtiging we laten je deze fantastische plek met liefde zien.
- - - - - - - - - -
Attractive and sustainable living in Almere's beloved Striphelden neighborhood!
Ready-to-move-in terraced house where comfort, sustainability, and a great location come together perfectly. This modern terraced house has been meticulously maintained and offers everything you could want in a future-proof home. From a cozy wood-burning stove and comfortable underfloor heating throughout the ground floor to 17 solar panels and a stylish kitchen—everything has been thought of here.
- The price shown is a starting price -
This spacious and energy-efficient home is ideal for families, home workers, or anyone looking for a nice place in a quiet, child-friendly neighborhood. With its own parking space, four full bedrooms, and spacious backyard with a nice canopy, this is a home you will enjoy living in for years to come.
We have listed the most important features for you. Are you interested and would you like to come and take a look? Please contact us for a viewing. There is so much to experience here, we would love to show you everything.
Features
- Terraced house built in 2008
- Energy efficient with energy label A+, fully insulated, HR++ glazing and equipped with 17 solar panels
- 146 m² of living space on a 147 m² plot
- Modern kitchen (2021) equipped with an induction hob, designer extractor hood, combination microwave, steam oven, refrigerator, freezer, dishwasher, and Quooker
- The cozy wood-burning stove provides pleasant warmth in winter and effortlessly heats the entire house
- The ground floor has comfortable underfloor heating
- The French doors, combined with large windows, provide plenty of natural light
- Spacious backyard facing northeast and featuring a beautiful canopy for cozy moments outside
- Completely renovated meter cupboard (2024) with three-phase connection, cable for charging station is already underground to the parking lot
- 4 full bedrooms
- The bathroom (2019) is fully equipped, including a comfortable bathtub, walk-in shower, sink, and toilet
- Park your car in your own parking space in the parking lot equipped with a charging cable
- The house is located in a car-free courtyard that is only accessible to local traffic, ensuring peace and safety
- Located in the cozy and child-friendly Stripheldenbuurt neighborhood
- Within walking distance you will find a supermarket, schools, childcare, playground, gym, and health facilities
- An 8-minute drive or a few minutes' bike ride from the center of Almere Buiten with various shops, the Doe Mere home furnishings mall, a fresh market, and a train station. Almere Center is approximately 10 minutes away with a wide range of shops and restaurants
- Within 5 minutes you can reach the A6/A27, which will take you to Amsterdam, Lelystad, Amersfoort, Hilversum, and Utrecht within 20-30 minutes.
- Delivery in consultation
About the residential area:
The house is located in the quiet and child-friendly Stripheldenbuurt Oost, a modern neighborhood in Almere Buiten. This neighborhood is known for its contemporary architecture, spacious layout, and a pleasant mix of young families and first-time buyers. The street itself is part of a car-free courtyard, which mainly has local traffic, contributing to a safe and quiet living environment. The immediate vicinity offers all daily amenities within easy reach. Various supermarkets, primary schools, childcare facilities, and playgrounds are located a short distance away. For extensive shopping and dining options, the DoeMere home furnishings mall and the center of Almere Buiten are easily accessible by bicycle or public transportation.
Accessibility is excellent. Via the nearby highways (A6 and N702), you can quickly reach Amsterdam, Lelystad, or Utrecht. Public transportation connections are also good: bus stops are within walking distance and Almere Buiten station is a short bike ride away.
The neighborhood is spacious with a focus on greenery and water. There are several parks and nature areas in the vicinity, ideal for a walk, a run, or just relaxing in the fresh air.
Are you interested and would you like to come and have a look? Contact us for a viewing and we will be happy to show you this fantastic place.
Overdracht
- Vraagprijs:€ 535.000,- k.k.
- Status:Verkocht o.v.
- Aanvaarding:In overleg
Bouw
- Soort:Eengezinswoning
- Bouwvorm:Bestaande bouw
- Bouwjaar:2008
- Dak type:Zadeldak
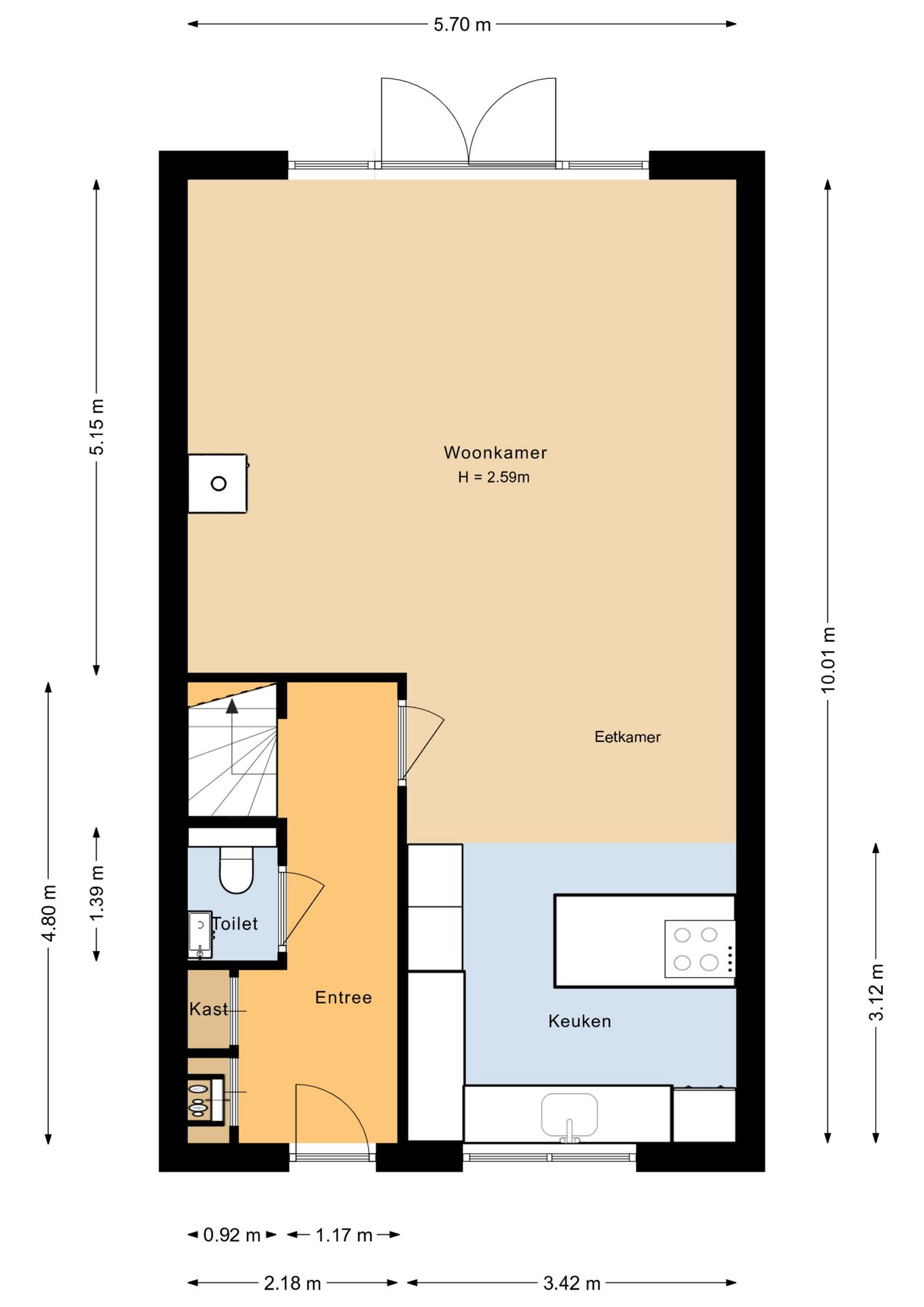
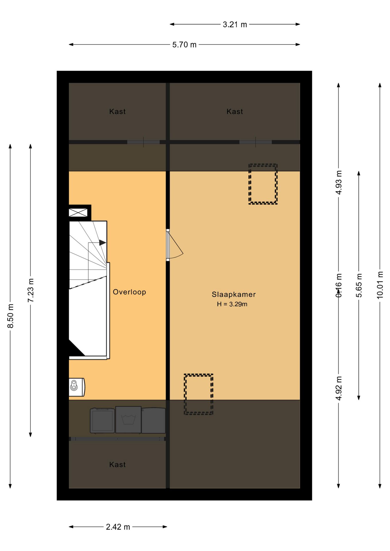
Oppervlakten en inhoud
- Wonen:146 m2
- Overige inpandige ruimte:0 m2
- Gebouwgebonden buitenruimte:0 m2
- Perceel:147 m2
- Inhoud:516 m3
Indeling
- Aantal kamers:5
- Aantal badkamers:1
- Aantal slaapkamers:4
- Voorzieningen:Mechanische ventilatie, Dakraam, Glasvezel kabel, Zonnepanelen
Energie
- Energieklasse:A+
- Isolatievormen:Muurisolatie, Vloerisolatie, Volledig geïsoleerd
- Soorten verwarming:CV ketel, Vloerverwarming gedeeltelijk, Houtkachel
- Soorten warm water:CV ketel
- CV ketel type:Intergas HRE-A 36/30 CW5
Buitenruimte
- Liggingen:Aan rustige weg, In woonwijk
- Tuintypen:Achtertuin, Voortuin
- Hoofdtuin:Achtertuin
- Hoofdtuin opp.:66 m2
- Hoofdtuin positie:Noordoost
- Achterom:Ja
Bergruimte
- Soort:Vrijstaand hout
- Voorzieningen:Voorzien van elektra
Parkeergelegenheid
- Parkeer faciliteiten:Op eigen terrein
- Parkeren capaciteit:1
Kadastrale gegevens
- Gemeente:Almere
- Perceel:2172
- Oppervlakte:136 m2
- Eigendomssituatie:Volle eigendom
Kadastrale gegevens
- Gemeente:Almere
- Perceel:2195
- Oppervlakte:11 m2
- Eigendomssituatie:Volle eigendom






